一、 產品概述
1、 輪胎式集裝箱門式起重機是集裝箱貨場進行堆碼作業的專用機械,廣泛應用于港口碼頭及集裝箱貨場。
2、 采用專用集裝箱吊具,可起吊20、40、45標準集裝箱及液壓儲存罐。
3、 大、小車運行機松采用三合一減速機,方便維護。
4、 輪胎可實現90。轉向,進行換場作業,同時具備20。或45。的斜行功能。
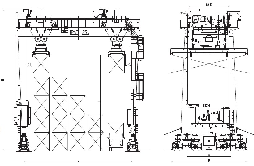
二、產品簡圖與技術規格(35t)



為您提供起重設備定制解決方案
多種款式、多種型號,更好的滿足您的需求
竭誠為國內外廣大客戶服務,并期待與您攜手合作
根據您的實際需求,推薦適合的設備和解決方案
規模化生產,保障產品質量和產能
標準化質檢流程
包裝嚴實,極速發貨
7*24全方位貼心服務
13226362999
官方微信
掃一掃
頂部
返回頂部