一、 產品概述
1、5t-500t雙梁吊鉤門式起重機適用于露天貨場,進行一般的裝卸、吊裝及起重搬運工作。
2、大小車運行機構采用三合一減速機,方便維護。
3、大風報警、防斷軸、防傾翻等各種安全措施齊全。
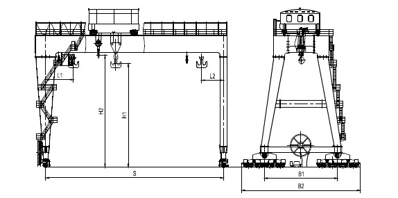
二、產品簡圖與技術規格(400/30~500/80t)


為您提供起重設備定制解決方案
多種款式、多種型號,更好的滿足您的需求
竭誠為國內外廣大客戶服務,并期待與您攜手合作
根據您的實際需求,推薦適合的設備和解決方案
規?;a,保障產品質量和產能
標準化質檢流程
包裝嚴實,極速發貨
7*24全方位貼心服務
13226362999
官方微信
掃一掃
頂部
返回頂部